Inicial Imóveis para Venda Imóveis para Locação Contato A Corretora Cadastre seu Imóvel Pesquisa Completa Financiamento Notícias Correspondente Bancário
 (42) 99987-8877  Centro - Guarapuava - PR

Tradução  

Sobrado para Venda, Guarapuava / PRbairro Alto da XV, sendo 3 suítes, 4 banheiros, 3 vagas de garagem, área construída 215,10 m², terreno 203,50 m²


  • 3 Suítes
  • 4 Banheiros
  • 3 Vagas
  • Área Terreno 203,50

R$ 1.480.000,00


Compartilhar:
Código: V187
Bairro: Alto da XV
Área Construída: 215,10 m²
Área Terreno: 203,50 m²
Suítes: 3
Banheiros: 4
Vagas: 3
Salas: 2
Valor por m²: R$ 6.880,00

Fale agora Conosco

Descrição do Imóvel

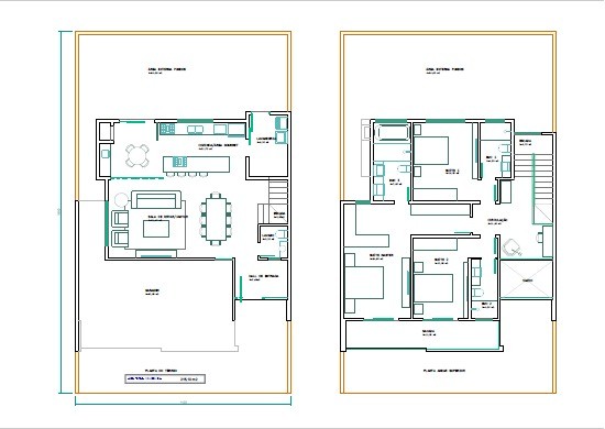
SOBRADO À VENDA  no Alto da XV, Guarapuava/PR
📍 Localização privilegiada, próximo ao centro e Colégio Aliança!

✨ Imóvel novo em construção, alto padrão, moderno e espaçoso, contendo:

No térreo:
✅ Garagem coberta para 3 carros lado a lado
✅ Hall de entrada com pé-direito duplo
✅ Lavabo
✅ Sala de estar e sala de jantar 
✅ Cozinha e área gourmet com churrasqueira integradas
✅Lavanderia

No piso superior:
✅  3 suítes, sendo 1 suíte master com ampla área para closet, hidromassagem e espaço de bancada para 2 cubas
✅ Home Office
✅ Ampla sacada externa

🔧 Diferenciais do empreendimento
 •  Acabamento em alto padrão
 •  Esquadrias em alumínio
 •  Revestimento de pisos e paredes em porcelanato
 •  Piso laminado nos quartos
 •  Piso aquecido no banheiro da suíte master (automatizado)
 •  Automação residencial completa (iluminação, ar-condicionado, persianas dos quartos) + Alexa (01 unidade)
 •  Infraestrutura de som na sala de jantar
 •  Infraestrutura para instalação de ar condicionado nos quartos
 •  Infraestrutura para instalação de aquecimento de água a gás
 •  Abrigo para central de gás
 •  Energia fotovoltaica instalada
 •  Grade alta, portão eletrônico, interfone e cerca elétrica, devidamente instalados
 •  Fechadura eletrônica na porta principal
 •  Infraestrutura para alarme
 •  Câmeras

✅ Área construída:  215,10 m²
✅ Área de terreno:  m²
✅ Entrega prevista para setembro/2026

Observação: Imagens ilustrativas

📍 Localização privilegiada junto do Virmond, bairro com casas de alto padrão, próximo ao centro, Colégio Aliança e comércio em geral!
💰 Excelente oportunidade pra morar com conforto e sofisticação!

📞 Entre em contato conosco!

Central de Negócios

Para ter mais informações sobre este imóvel ligue:

(42) 99987-8877 
stremelimoveis@gmail.com

Mais Informações

Entrar em contato

 Centro - Guarapuava - PR

 (42) 99987-8877

 E-mail: stremelimoveis@gmail.com

www.stremelimoveis.com.br © 2026. Todos os direitos reservados.

Site para Imobiliarias
Site para Imobiliarias